Na sprzedaż wyjątkowa nieruchomość komercyjna – Dom Wycieczkowy położony w ścisłym centrum Trzebnicy.
Obiekt o powierzchni użytkowej 1 103,23 m², posadowiony na działce o powierzchni 0,2066 ha, stanowi idealną inwestycję pod kontynuację działalności hotelowo-noclegowej, obiekt rehabilitacyjny, dom spokojnej starości, hotel pracowniczy lub ośrodek szkoleniowo-wypoczynkowy.
Możliwość przekształcenia obiektu na lokale mieszkalne.
Podstawowe dane
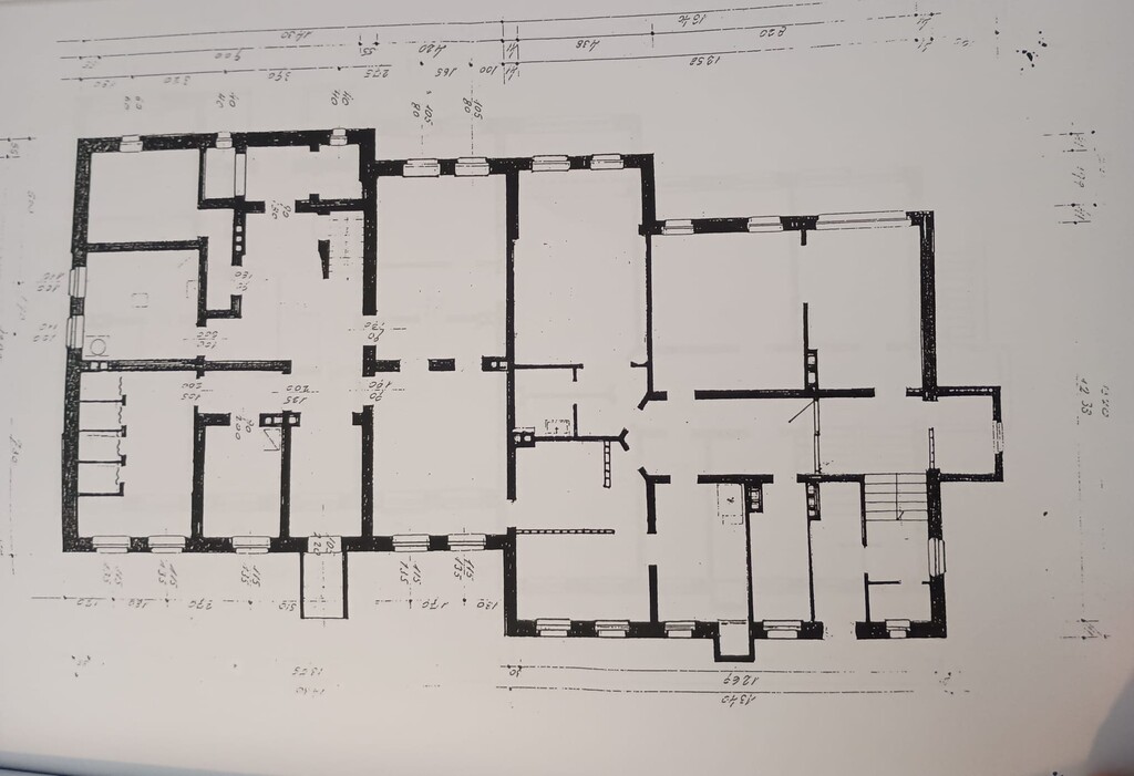
Rozkład pomieszczeń i funkcje Piwnica:
Kuchnia z zapleczem produkcyjnym, sale jadalne, magazyny, pralnia, magiel, kotłownia, zaplecze sanitarne dla personelu.
Parter:
Pokoje 2–5 osobowe, pokój biurowy, pokój rekreacyjny, pomieszczenia sanitarne.
Piętro I:
Pokoje 2–6 osobowe, sanitariaty, kuchnia podręczna.
Poddasze:
Pokoje mieszkalne, pomieszczenia sanitarne.
Część pokoi z łazienkami, część ze wspólnymi sanitariatami.
Opis techniczny i standard wykończenia Budynek wykonany w technologii tradycyjnej – cegła ceramiczna, stropy drewniane, dach kryty dachówką ceramiczną (karpiówka), wieża z blachy cynkowej.
W latach 2010–2014 przeprowadzono kompleksowy remont obejmujący:
Obiekt utrzymany i systematycznie konserwowany.
Zagospodarowanie terenu
Media i instalacje
Lokalizacja Budynek zlokalizowany w centralnej części Trzebnicy, przy ul. Kościuszki – w sąsiedztwie Rynku, urzędów, banków, usług, przystanków autobusowych i dworca PKP.
Doskonała ekspozycja i widoczność – położenie przy głównej arterii miasta (trasa Wrocław–Poznań).
Odległości:
Potencjał inwestycyjny
Cena: 5 900 000 zł netto
Zapraszam na prezentację.
Jot-Be Nieruchomości
Wojciech Jodłowski
Licencja zawodowa numer: 30213
tel. +48 609 222 532 ,
wjodlowski@jot-be.pl
Jako agent JOT-BE NIERUCHOMOŚCI zapewniam Państwu uniknięcie niepotrzebnego ryzyka i przeprowadzenie korzystnej transakcji.
Gwarantuję rynkowe ceny, bezpieczeństwo i obsługę własnego działu prawnego. Stosuję system jakości Polskiej Federacji Rynku Nieruchomości Expert oraz Kartę Praw Klienta Pośrednika. Służę życzliwym zaangażowaniem, ekspercką wiedzą i najwyższym poziomem usług opartym o 43-letnie doświadczenie biura JOT-BE NIERUCHOMOŚCI.
Niniejsza oferta nie jest ofertą w rozumieniu przepisów Kodeksu Cywilnego.
