Zakup bezpośrednio od dewelopera – bez podatku PCC i bez prowizji.
Don’t hesitate to call, I speak English and German.
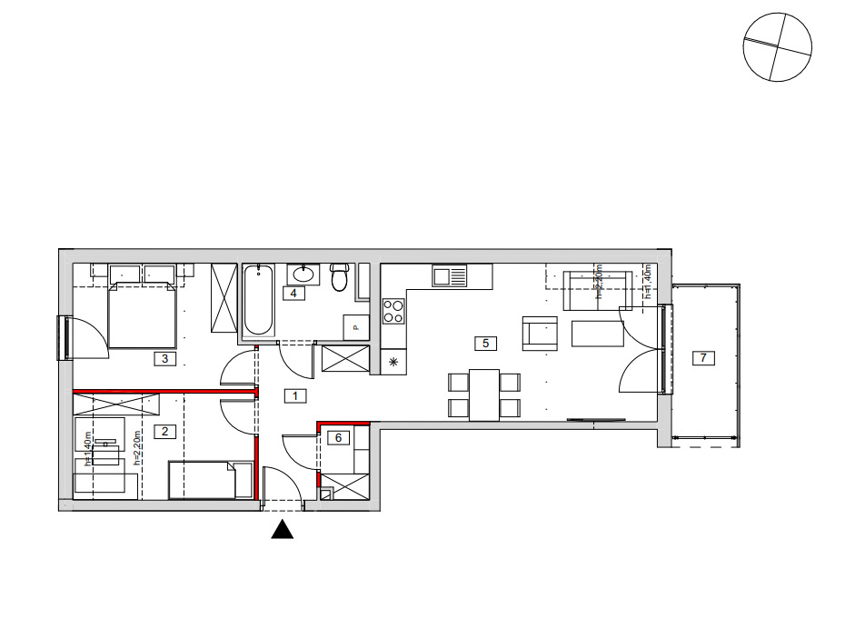
Oferuję funkcjonalne mieszkanie o powierzchni 56,79 m², położone na 2. piętrze w nowoczesnym budynku wielorodzinnym.
Układ pomieszczeń:
• salon z aneksem kuchennym – 23,20 m²
• pokój – 10,88 m²
• pokój – 7,93 m²
• przedpokój – 7,09 m²
• łazienka – 5,05 m²
• garderoba – 1,88 m²
• balkon – ok. 5,35 m²
Najważniejsze atuty:
Mieszkanie znajduje się w spokojnej, rozwijającej się okolicy z dobrym dostępem do komunikacji miejskiej oraz pełnej infrastruktury usługowo-handlowej, co zapewnia wygodę codziennego funkcjonowania.
Dodatkowe Korzyści:
Zdjęcia stanowią jedynie inspirację aranżacyjną i nie przedstawiają aktualnego wnętrza.
Zapraszam na prezentację.
Jot-Be Nieruchomości
Wojciech Jodłowski
Licencja zawodowa numer: 30213
tel. +48 609 222 532 ,
wjodlowski@jot-be.pl
Jako agent JOT-BE NIERUCHOMOŚCI zapewniam Państwu uniknięcie niepotrzebnego ryzyka i przeprowadzenie korzystnej transakcji.
Gwarantuję rynkowe ceny, bezpieczeństwo i obsługę własnego działu prawnego. Stosuję system jakości Polskiej Federacji Rynku Nieruchomości Expert oraz Kartę Praw Klienta Pośrednika. Służę życzliwym zaangażowaniem, ekspercką wiedzą i najwyższym poziomem usług opartym o 43-letnie doświadczenie biura JOT-BE NIERUCHOMOŚCI.
Niniejsza oferta nie jest ofertą w rozumieniu przepisów Kodeksu Cywilnego.