Zapraszam Was do zapoznania się z ofertą 2-pokojowego mieszkania z balkonem, położonego blisko terenów zielonych na wrocławskim Ołtaszynie.
Kupując mieszkanie w stanie deweloperskim nie płacisz prowizji i podatku PCC.
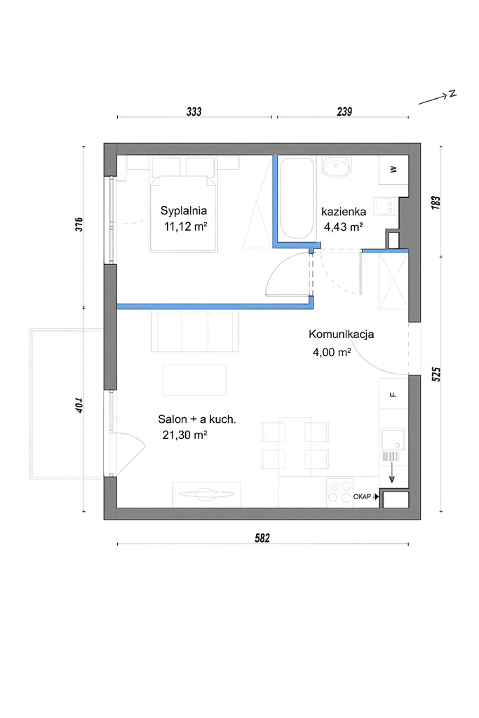
Mieszkanie ma 40,85 m² i składa się z:
• sypialni nr 1
• jasnego salonu z aneksem kuchennym
• łazienki
• przedpokoju
Do tego dochodzi balkon ok. 4,5 m², idealny na poranną kawę lub wieczorny odpoczynek.
Na terenie osiedla dostępne są miejsca postojowe oraz komórki lokatorskie.
Rzut z pełnym metrażem pomieszczeń jest dostępny w galerii — a jeśli ten układ nie jest idealny, mam też inne metraże i warianty w tej lokalizacji.
Standard wykończenia?
Osiedle wyróżnia się nowoczesną, kameralną zabudową. Budynki są niskie, utrzymane w eleganckiej stylistyce, wykończone wysokiej jakości materiałami. Przestrzenie wspólne są zadbane, przemyślane i sprzyjają codziennemu komfortowi.
Dla rodzin — plac zabaw, dla osób aktywnych — mnóstwo ścieżek spacerowych i zielonych terenów w okolicy.
Atuty lokalizacji:
• spokojna, willowa okolica
• blisko stacja PKP
• 700 m do Biedronki
• w pobliżu przystanek autobusowy
• szybki dojazd do Bielan Wrocławskich i A4
Termin oddania: I kwartał 2026 r.
Pomagam również w finansowaniu zakupu — nasz ekspert kredytowy bezpłatnie sprawdzi najlepsze opcje.
Możliwość wykończenia mieszkania pod klucz — od projektu po gotowe wnętrze.
Jeśli szukasz czegoś innego, mam w ofercie ponad 100 propozycji z rynku pierwotnego — chętnie zaproponuję coś dopasowanego.
Jakub Urbański
Nr. licencji: 30061
T: 573 024 193
mail: jurbanski@jot-be.pl
Jako agent JOT-BE NIERUCHOMOŚCI zapewniam Państwu uniknięcie niepotrzebnego ryzyka i przeprowadzenie korzystnej transakcji. Gwarantuję rynkowe ceny, bezpieczeństwo i obsługę własnego działu prawnego. Stosuję system jakości Polskiej Federacji Rynku Nieruchomości oraz Kartę Praw Klienta Pośrednika. Służę zaangażowaniem, ekspercką wiedzą i najwyższym poziomem usług opartym o 40-letnie doświadczenie biura JOT-BE NIERUCHOMOŚCI.
Niniejsza oferta nie stanowi oferty w rozumieniu przepisów Kodeksu Cywilnego