Szukasz kompaktowego mieszkania, które będzie świetną inwestycją lub pierwszym własnym M?
Mieszkania 30-45m2, idealne pod wynajem.
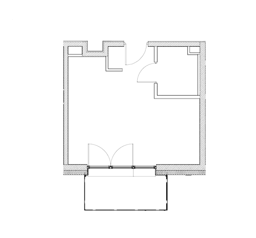
W aranżacji mieszkania zaproponowałam:
• wydzieloną strefę nocną z miejscem na łóżko i szafę, oddzieloną od części dziennej – to najlepszy układ pod wynajem,
• znalazło się miejsce na stół z krzesłami,
• kuchnia jako funkcjonalny aneks kuchenny,
• łazienka mieści:
– wannę wolnostojącą przyścienną,
– szafkę umywalkową,
– WC z zabudową nad geberitem,
– pralkę w zabudowie i pojemną przestrzeń do przechowywania,
• w korytarzu zaplanowano szafę w zabudowie.
Atuty lokalizacji:
• blisko Uniwersyteckiego Szpitala Klinicznego,
• przystanki autobusowe i tramwajowe w zasięgu kilku minut,
• ścieżki rowerowe prowadzące w każdym kierunku Wrocławia,
• sklepy, piekarnia i punkty usługowe tuż obok – wszystko, czego potrzebujesz na co dzień.
Współpracuję z większością deweloperów na rynku, więc mogę zaproponować Ci alternatywne mieszkania o podobnym metrażu i budżecie – wszystko w jednym miejscu.
Kupujący nie ponosi żadnych kosztów ani prowizji (0%).
Dodatkowo:
- Możesz skorzystać z naszych doradców kredytowych, którzy współpracują ze wszystkimi bankami i znajdą najlepszą ofertę dla Ciebie. Bezpłatnie.
- Możesz powierzyć nam wykończenie wnętrza pod klucz. Oferujemy kompleksową realizację – od projektu po gotowe mieszkanie, do którego wprowadzisz się bez stresu.
- Zajmiemy się wynajmem Twojej nieruchomości
->Umówmy się na spotkanie – przy kawie porównamy inwestycje i wybierzemy najlepsze rozwiązanie dla Ciebie.
Aleksandra Kaczyńska
Specjalistka ds. nieruchomości | Architektka
+48 609 222 533